Stenset J
Stenset J
Stenset J
Stenset J
Stenset J
Stenset J
Stenset J

Snabba leveranser

Stora lager

Personlig service

Låga priser

Produktinformation

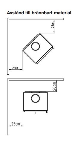
Stenset som passar till Hörby J

Egenskaper

Artikelnummer
1334
Produkttyp
Stenset
Varumärke
Thorma
Area (m³)
30-135m²
Anslutning
Topp Ø 150 Mm
Effekt (kW)
7000
Verkningsgrad (%)
75%
EAN-kod
8586008089404